事務所 モノリスビル
☆駐車場(10万)5台~大きさ制限により8台駐車が可能です。
すぐ見れます! 内覧可♪ 事前連絡にて案内可能です
おもろまち駅近く☆駅から徒歩圏内、駅を利用して通勤可能!
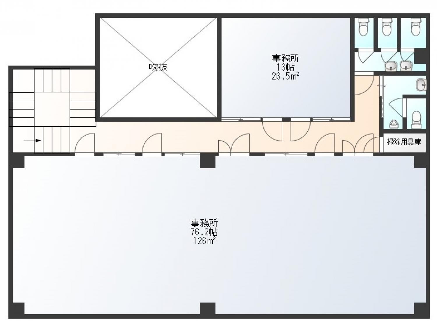
貸店舗・貸事務所男女トイレ別、エアコンやキッチン、事務所や塾など様々な用途に適してます
☆一棟貸しの用途相談可♪♪
- 家賃(共益費)
- 120万円
- 所在地
- 那覇市真嘉比1丁目地図を見る
- 専有面積
- 93.95坪(310.6㎡)
- 入居
- 即時可
物件詳細情報
| 所在地 | 那覇市真嘉比1丁目地図を見る |
|---|---|
| 交通 |
モノレール「おもろまち駅」徒歩3分 距離200m |
| 用途 | 事務所 | 用途備考欄 | 貸店舗 |
|---|---|---|---|
| 構造 | RC | 専有面積 | 93.95坪(310.6㎡) |
| 所在階/階建 | 2階/2階建 | 駐車場 |
|
| 築年(経年) | 2006年 (20年) | ||
| こだわり条件 | 1階(路面)/駐車場2台以上/アスファルト舗装/駐車場あり | ||
| 設備 | エアコン | ||
| 家賃 | 120万円 | ||
|---|---|---|---|
| 共益費 | 建物維持管理費 | 1,000円 | |
| 敷金 | 礼金 | ||
| 保証金 | 2ヶ月 | 手数料 | 1ヶ月 |
| 更新事務手数料 | |||
| 引渡 | 空き | 入居 | 即時可 |
|---|---|---|---|
| 契約形態 | 更新 | ||
| 備考 |
<現在空室 内覧可能です 1階フロア― 2階フロアー > ◎現状引き渡しとなります 家 賃: 1,200,000円(消費税込) 駐車場:5台 ~ (大きさ制限により8台駐車可能) 82,500円(税込) 合 計 1,282,500円 【その他一時金】 ※火災保険料は自己加入・家賃保証会社への審査・加入必須(%) ※仲介手数料は、家賃(+駐車料)に消費税加算した額となります。 ※写真や動画はイメージとしてご利用ください。 ⇨現状と異なる場合は現状優先と致します。 ※エアコン設備に関して退去後現状優先となります。※保証無し ※お問合せ状況により、お申し込みをお断りする場合が御座います。 ※内覧せずにお申し込み可能となります。 ※申込書類揃った方が優先となりますが、同日複数お申し込みがある際には同時審査となります。 【その他一時金】 ※建物維持管理費(月/¥1,000) ※テナント総合保険自主加入・家賃保証会社への審査・加入必須 ※仲介手数料は家賃1ヵ月分に消費税が付加された額となります。 ※鍵交換費用(¥25,000~(税別) ※鍵の形状や個数にて額変動あり ※保証人県外の場合、敷金の変動有(敷金追加) ・家賃保証会社への審査・加入必須(全保連株式会社) 【申込方法】 ①ご来店 ②CUBEのHPにて書類確認後、提出。 ■入居までの流れを確認した上でご対応お願い致します。 ■身分が分かる書類の提出(裏表コピー)運転免許書 ■法人であれば、登記簿(3カ月以内)が必要となります。 →お申込み段階ではコピーにて対応可能です。 申込用紙記入後、ご提出お願い致します。 【お問合せ先】 株式会社CUBEうちどまり店 毎週水曜日は電話受付のみ(※内覧不可) 日曜日定休 TEL:098-943-2030 FAX:098-943-2031 mail:info@cube-okinawa.jp Instagram @OKINAWA.CUBE.CHINTAI |
||
|---|---|---|---|
周辺マップ
周辺のお店・施設
物件
ドラッグストア
レンタルビデオ
銀行
病院
学校
幼稚園・保育園
コンビニ
スーパー
警察署・派出所
郵便局
公園
他のオススメ物件
- 1LDK
- 家賃 3万円
- 松川アパート
- 1K
- 家賃 6万円
- AMEX新都心
- 1R
- 家賃 4.8万円
- ショコラ
- 1R
- 家賃 4.8万円
- ショコラ
- 1K
- 家賃 5.7万円
- カーサフェリーチェ新都心
- 1K
- 家賃 6.5万円
- Green court天久(グリーンコート)
- 家賃 1.32万円
- Greencourt天久 一般契約駐車場
- 1DK
- 家賃 7.5万円
- フェリーチェ新都心
- 2LDK
- 家賃 9万円
- フェリーチェ新都心
- 1LDK
- 家賃 4.5万円
- エバーグリーンハウス









